Аренда помещения свободного назначения

91 700 ₽/мес

16 800 ₽ за м²/год

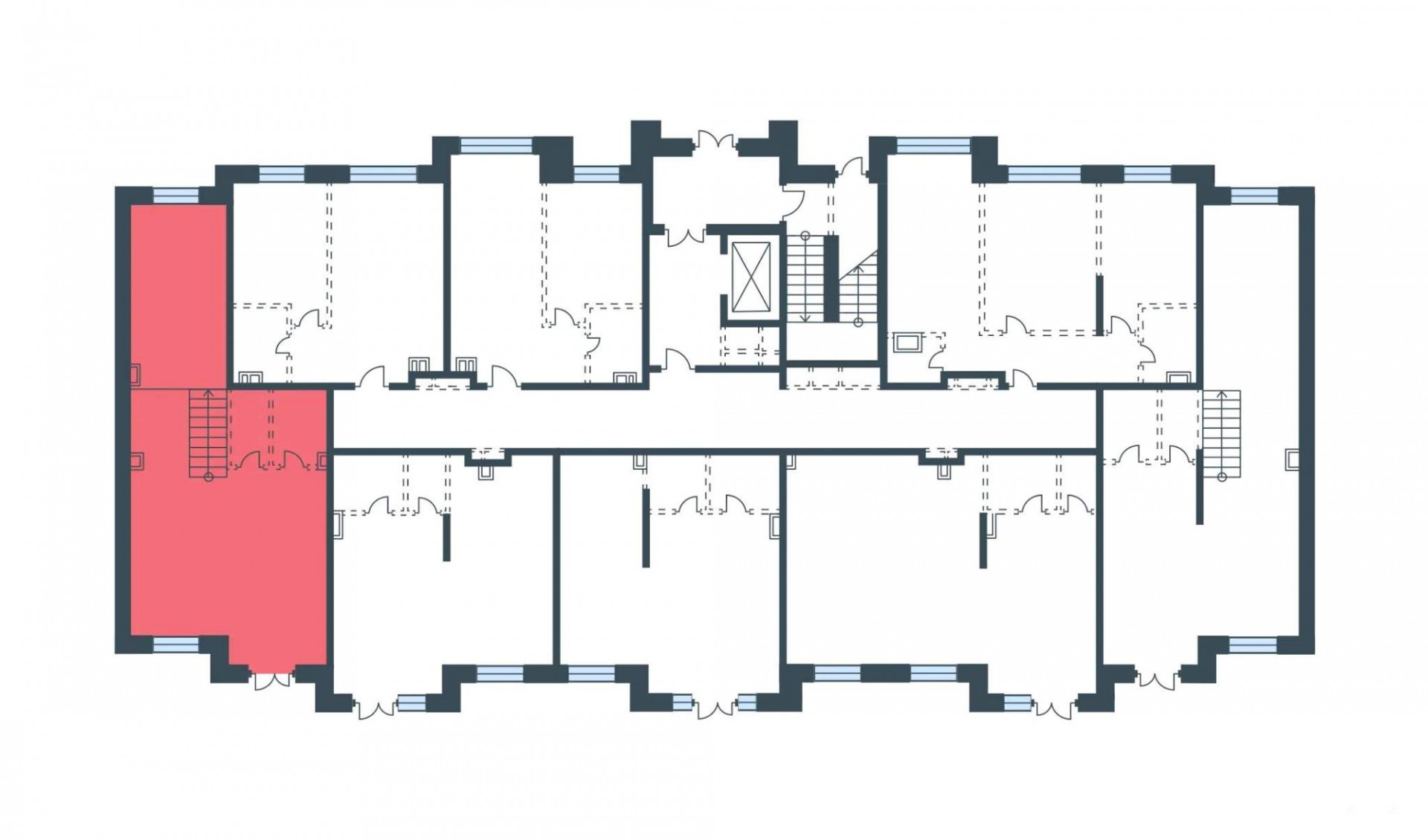
66 м²
Площадь
1/4
Этаж

Поделиться

Добавить в избранное

Сдаётся в аренду коммерческое помещение площадью 65, 5 м на 1-м этаже 5-этажного жилого дома в ЖК «Театральный Парк».
Основные преимущества:
- отдельный вход;
- место под вывеску;
- круглосуточный доступ;
- помещение без ремонта, что позволяет обустроить его по своему вкусу и требованиям бизнеса;
- помещение находится в жилом комплексе комфорт-класса;
- развитый район с насыщенной инфраструктурой и активным пешеходным трафиком.
Технические характеристики: наличие всех необходимых коммуникаций: водоснабжение, канализация, электроснабжение. Выделенная мощность - 13, 1 кВт. Высота потолков - 4, 2 м.
Условия: помещение предоставляется без посредников, напрямую от собственника - компании «Аструм Недвижимость», которая управляет коммерческой инфраструктурой жилых комплексов ГК «Гранель».
ЖК «Театральный Парк» от ГК «Гранель» - это современный малоэтажный комплекс комфорт-класса, расположенный в экологически чистом районе подмосковного Королева, всего в 7 км от МКАД. Близость к Москве позволяет совмещать активную деятельность в столице с комфортной жизнью за городом. Комплекс возведен на площади 27 га, включает 42 кирпичных дома и всю необходимую для жизни инфраструктуру. Микрорайон уже практически полностью заселен более чем 4, 5 тысячами жителей, большинство из которых - активные люди в возрасте 20-50 лет, что гарантирует высокий пешеходный трафик. На первых этажах жилых корпусов, как в данном предложении, расположены коммерческие помещения.
Наши менеджеры помогут вам подобрать наиболее подходящее помещение для вашего бизнеса. Звоните и узнайте подробности!

Дата обновления: 30 сентября 2025